
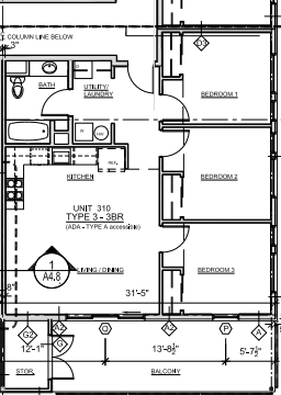
Grove Phase 1, Unit 310, (address: 250 Scott Lane):
- 3-bedroom, 1-bathroom, approximately 900 square feet
- Range, refrigerator, dishwasher, microwave, large deck, storage, and washer & dryer.
- NO PETS ALLOWED
- Income Range: 0% to 50% of the Median Family Income -see income limits listed below
- Occupancy Requirement: three (3) or more people
- The monthly rental amount is $955, which includes electricity, water, sewer, and trash.
- At least one adult in the household must work a minimum of 1,560 hours per year. Please read the policies to enter any weighted drawing: Housing Department Rules & Regulations, Section 4: Weighted Drawing.
- Initial rental term estimated to begin September 2025. The first month's rent + a $1,500 security deposit will be due at signing. The total security deposit due is $3,000; $1,500 can be paid in payments over one (1) year ($125 per month).
- Deadline to Apply: Tuesday, June 17th by 5:00 PM. If selected first for this unit, you will be notified by phone, and you must submit a complete application within 5 business days. All others will be sent an email notice.
Income LImits - households may not earn more than the limits listed below:
Three-Person Household: $0 to $63,675
Four-Person Household: $0 to $70,750
Five-Person Household: $0 to $76,410
Six-Person Household: $0 to $82,070
Seven Person Household: $0 to $87,730
Eight Person Household: $0 to $93,390
Asset Limit - $141,500
The Housing Department has transitioned to a new online account an application platform.
If you have created and completed your interest application before June 4th, and you meet the income and asset qualifications for the specific unit currently available, you will receive an email from us inviting you to enter the drawing for this unit. If you have not received an invitation email, you may not enter this drawing.
Step 1: To be eligible to enter, you must have received an invitation email. Click the link in the email to enter the drawing.
Step 2: Upload the following documents to your Interest Application before the deadline (June 17, 2025)
For Self Employment - please provide the following:
- Self-employment application here
Please contact the Housing Department if you have any questions or need assistance with the forms.
Floor Plan
